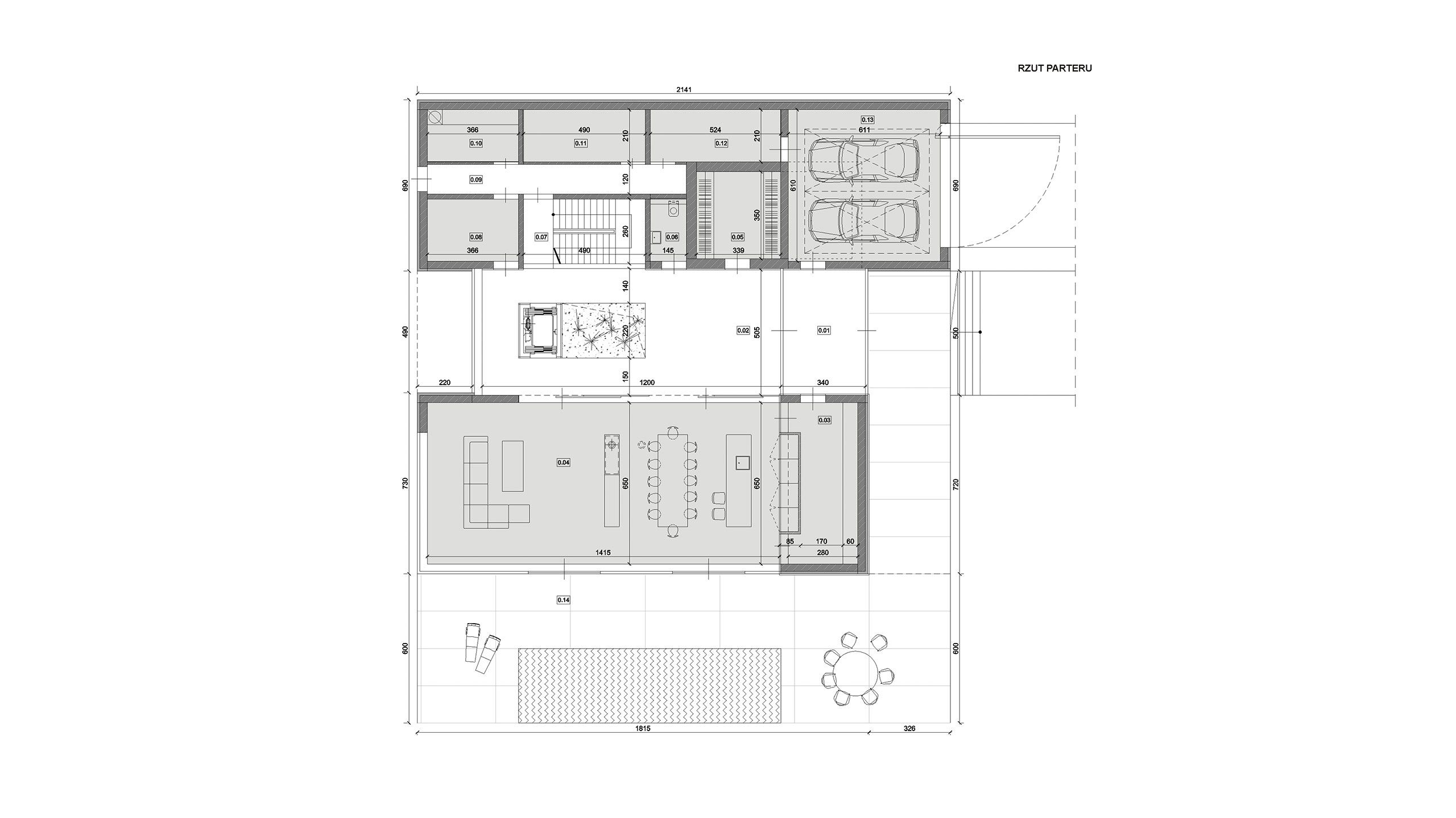
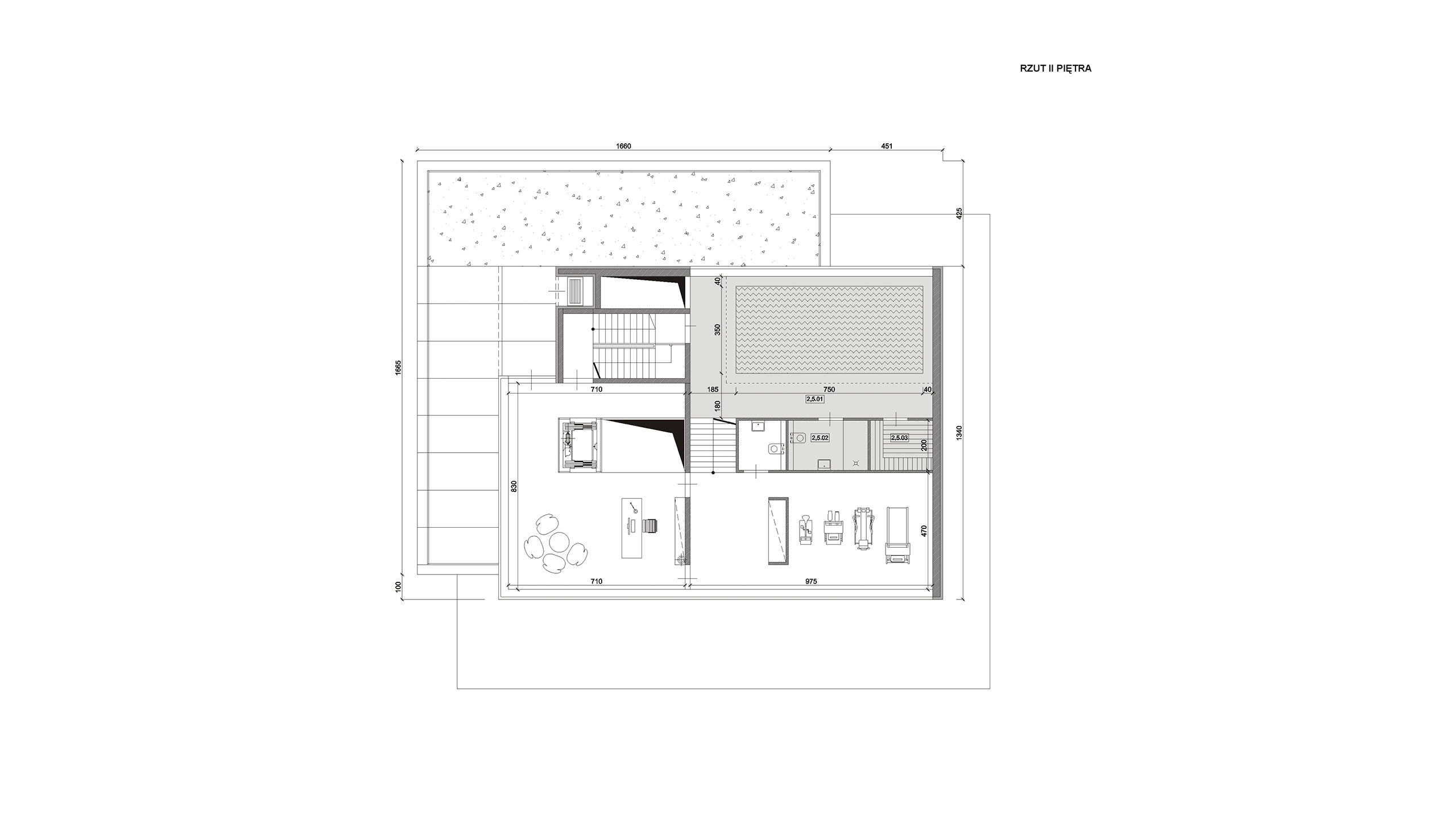
Dom w Gliwicach lokalizacja: Gliwice architekci: Przemo Łukasik, Łukasz Zagała współpraca autorska: Justyna Siwińska-Pszoniak, Konrad Basan inwestor: prywatny powierzchnia: 700 m² projekt: 2010