Spichlerz
Adaptacja budynku spichlerza na lofty mieszkalne
- lokalizacja: Gliwice, ul. Zygmunta Starego
- architekci: Przemo Łukasik, Łukasz Zagała
- współpraca autorska: Rafał Dziedzic, Kuba Pudo, Tomasz Majewski, Dominik Jaksik, Dawid Beil, Krzysztof Drozda, Justyna Siwińska-Pszoniak, Agnieszka Szewera, Jakub Magoń
- wnętrze mieszkania pokazowego: Agnieszka Glińska i Ewa Marcinek
- konstrukcja: Firma Inżynierska STATYK
- inwestor: Wektor Inwestycje sp. z o.o.
- powierzchnia: 5 000 m²
- projekt: 2007-2008
- realizacja: 2009
- nagroda: Superjednostka 2010
- fotografie: Tomasz Zakrzewski
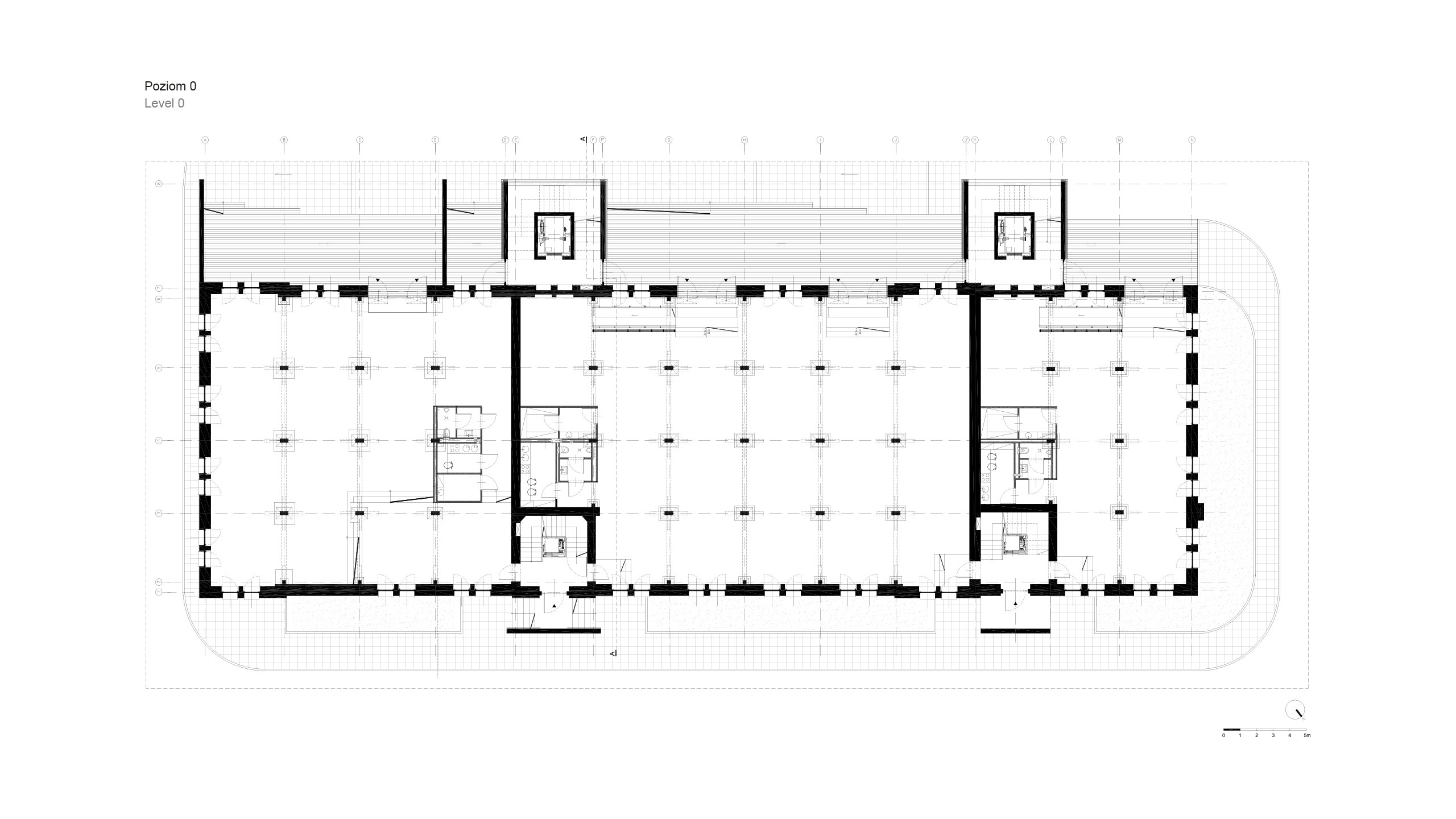
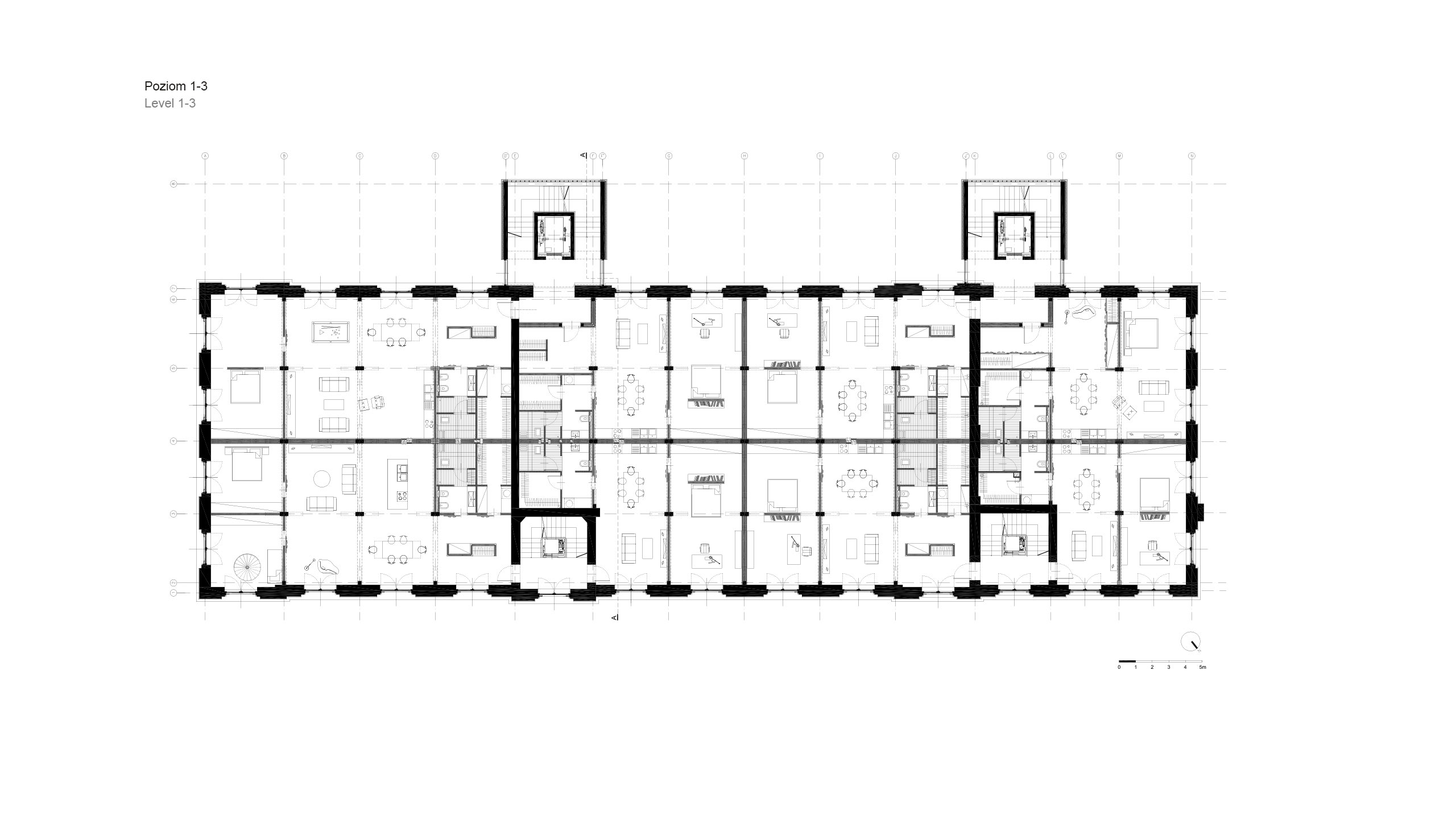
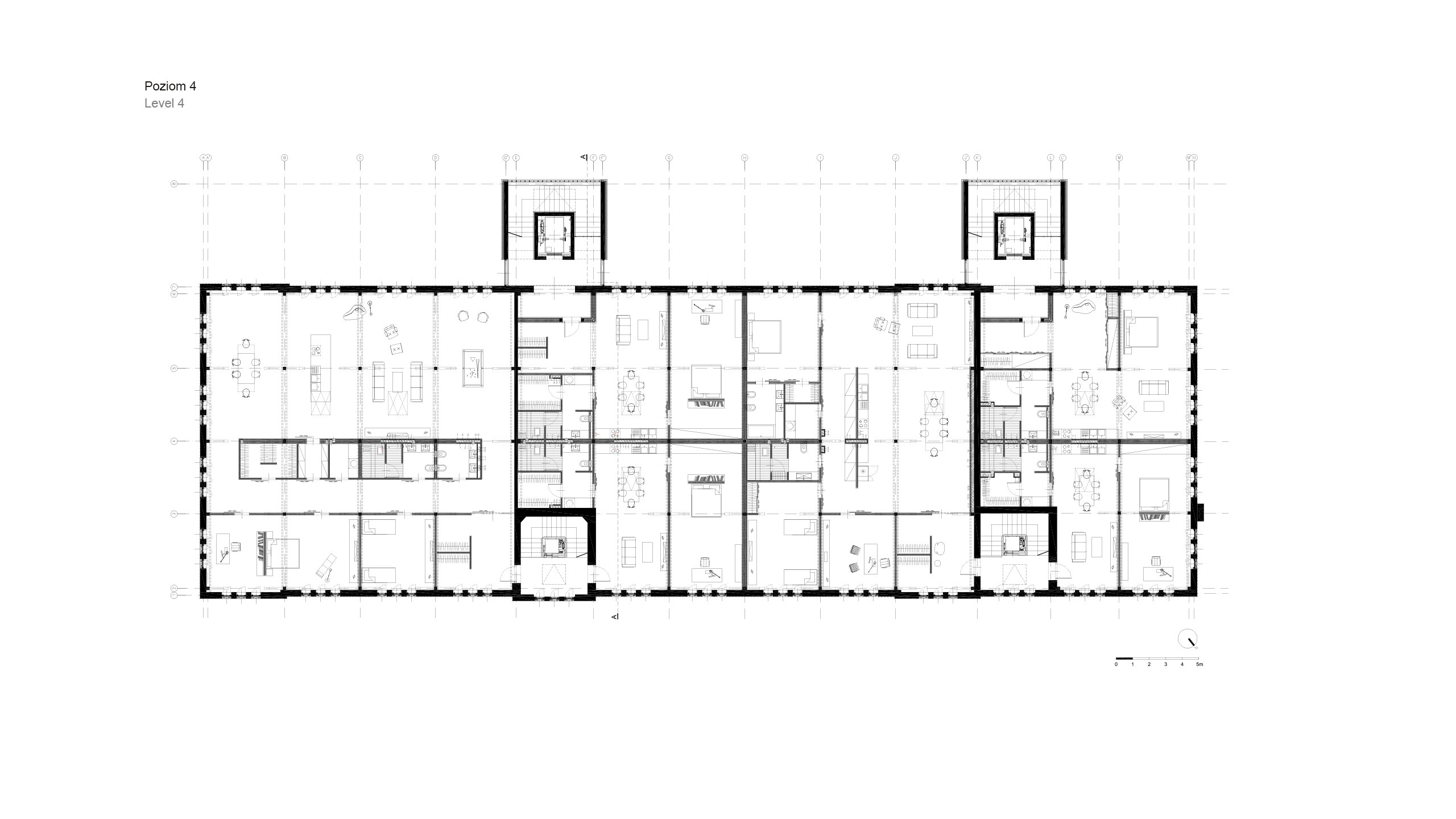
Budynek zabytkowego spichlerza znajduje się w atrakcyjnej części Gliwic wypełnionej niską i średniowysoką zabudową rezydencjonalną, co jest rzadkością w lokalizacjach obiektów poprzemysłowych. Pierwotnie służył jako magazyn zbożowy, a w okresie powojennym jako magazyn leków przy przyległym Szpitalu Wojskowym. Adaptacja nie zakładała znaczących zmian w bryle budynku, jedynie z uwagi na zaprojektowany układ mieszkań dobudowano dwa zewnętrzne trzony komunikacyjne pokryte stalą Cor-Ten. Pomiędzy nowoprojektowanymi trzonami komunikacyjnymi zaprojektowano taras z drewna egzotycznego poszerzający funkcje usługowo-handlowe zlokalizowane w parterze. Elewację budynku poddano renowacji oraz konserwacji, usunięto oryginalną ślusarkę żeliwną, a w jej miejsce osadzono drewnianą stolarkę spełniającą wymogi termiczne. Mając na względzie powtarzalny układ kondygnacji, oparty na konstrukcyjnej siatce drewnianych słupów, założono możliwość wpisania różnych wariantów zagospodarowania funkcjami mieszkalnymi. W parterze przewidziano usługi, funkcje handlowe lub biurowe w przestrzeniach typu open space, z możliwością dowolnej aranżacji przez przyszłego klienta. Wnętrza mieszkań oraz lokali usługowych pozostawiono w oryginalnym charakterze – surowa cegła oraz drewniana konstrukcja w naturalnej barwie. Elementy te poddane zostały jedynie oczyszczeniu oraz impregnacji. Wewnętrzne klatki schodowe odrestaurowano, a do ich wnętrza wprowadzono dźwigi współczesne.




















