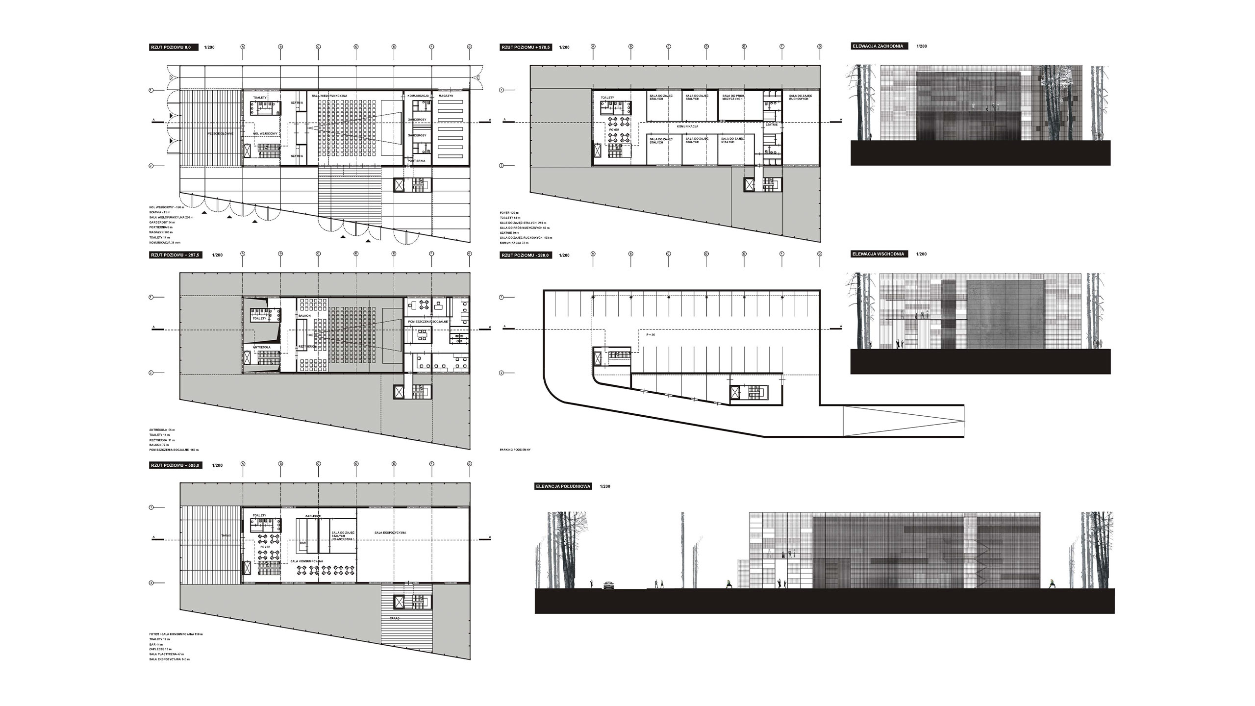
Dzielnicowe Centrum Promocji Kultury lokalizacja: Warszawa architekci: Przemo Łukasik, Łukasz Zagała, Bartłomiej Brzózka, Tomasz Majewski, Maria Jaksik-Fikus, Dominik Jaksik, Dawid Beil, Kuba Pudo projekt: 2003