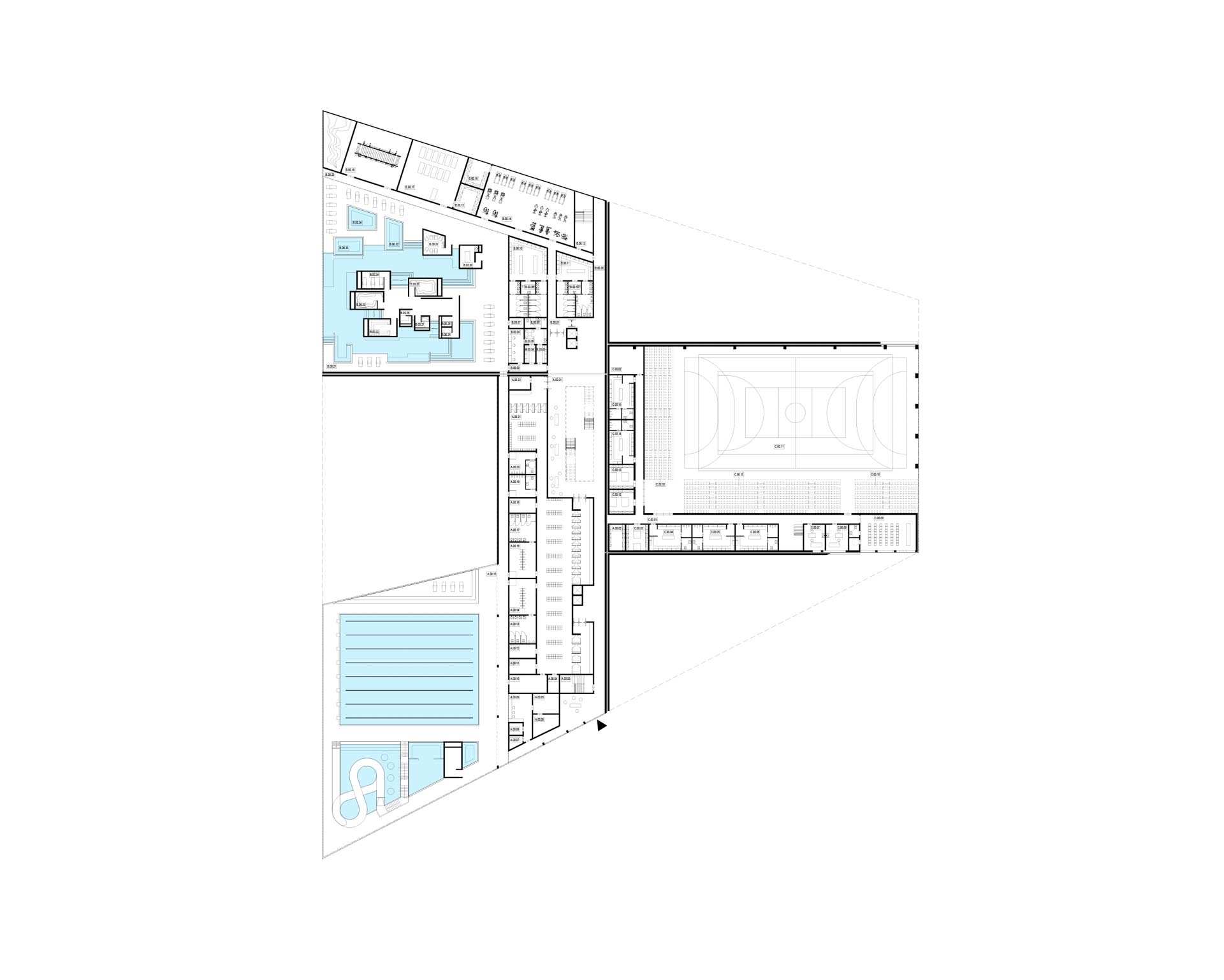
Kompleks sportowy w Piekarach Śląskich
Konkurs urbanistyczno-architektoniczny na wykonanie koncepcji kompleksu sportowego z zagospodarowaniem terenu w Piekarach Śląskich
- lokalizacja: Piekary Śląskie
- architekci: Przemysław Łukasik, Łukasz Zagała, Jarosław Przybyłka, Jakub Pudo, Paulina Kałużna – Stawinoga, Jan Wichrowski, Julian Kleinrok, Jakub Świdziński, Łukasz Chmiej, Krzysztof Pyta, Marta Boryczka, Michał Sokołowski, Aleksandra Mazur, Krzysztof Weber, Tymoteusz Sapa, Mateusz Małecki, Adam Skrzypczyk
- inwestor: Gmina Piekary Śląskie
- powierzchnia: 9 569,94 m²
- projekt konkursowy: 2021
- nagroda: honorowe wyróżnienie



















