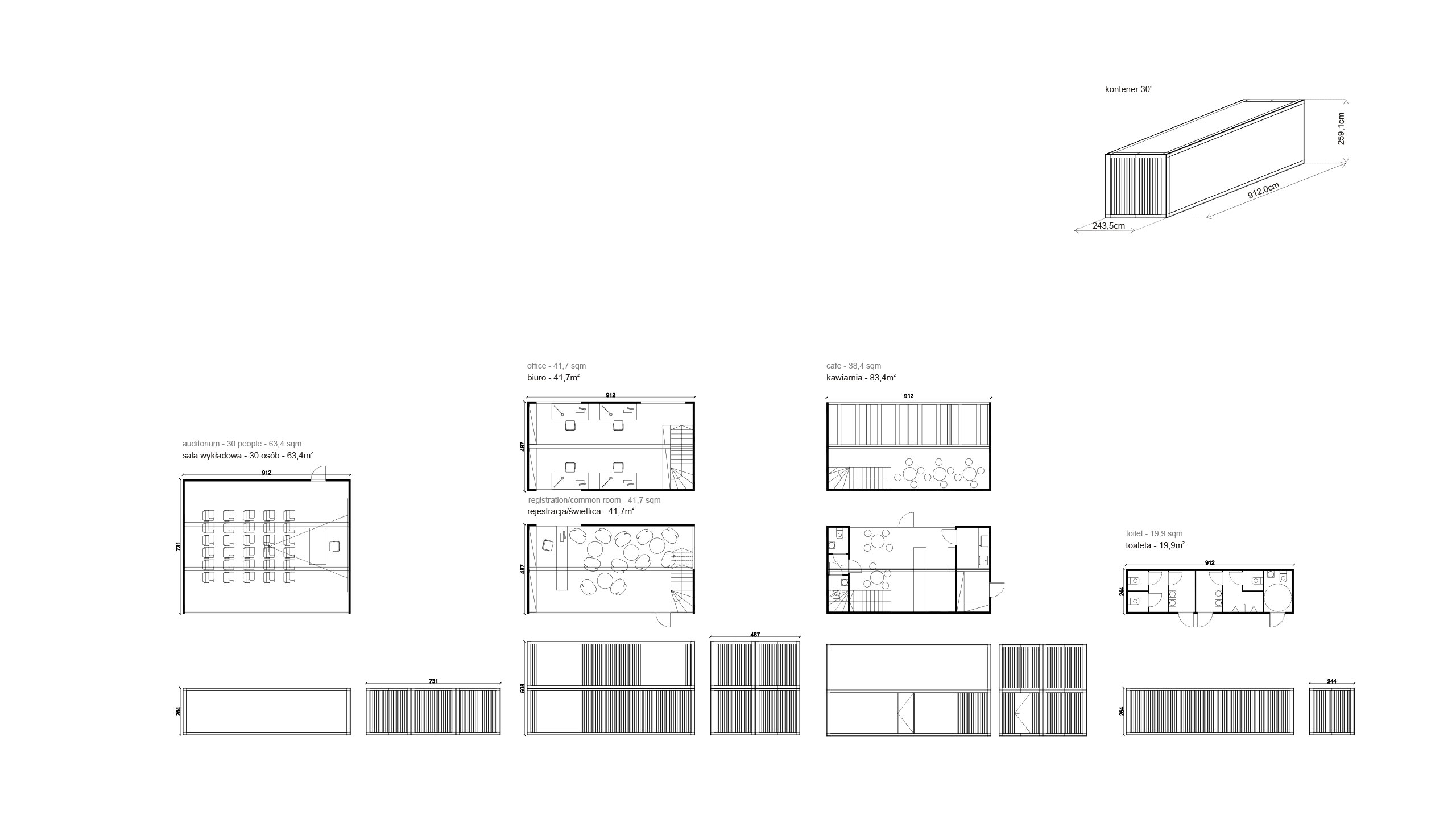
Kontenerowe sale dydaktyczne
Wstępna koncepcja kontenerowych sal dydaktycznych dla PWSFTViT w Łodzi
- lokalizacja: Łódź
- architekci: Przemo Łukasik, Łukasz Zagała
- współpraca autorska: Justyna Siwińska-Pszoniak, Daria Cieślak, Krzysztof Drozda, Rafał Dziedzic, Michał Sokołowski
- inwestor: PWSFTViT w Łodzi
- projekt: 2009



