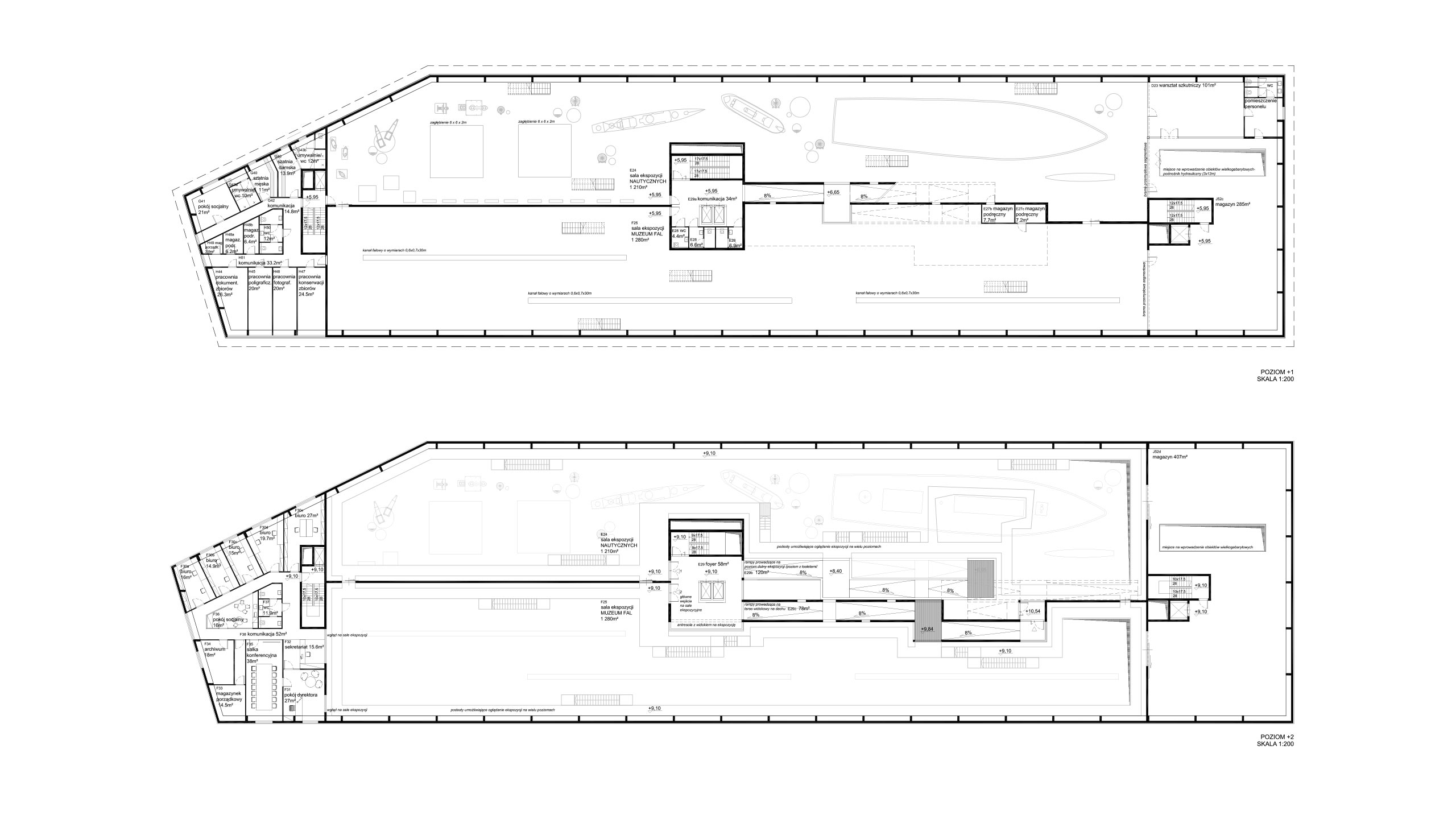
Muzeum Morskie w Szczecinie
Konkurs SARP na projekt koncepcyjny Muzeum Morskiego - CENTRUM NAUKI
- lokalizacja: Szczecin
- architekci: Przemo Łukasik, Łukasz Zagała
- współpraca autorska: Rafał Dziedzic, Agnieszka Kosek, Agnieszka Morga, Ewa Odyjas, Jarosław Przybyłka, Jakub Pudo, Justyna Siwińska-Pszoniak, Michał Sokołowski, Lukas Stopczynski
- projekt: 2011
- nagroda: III miejsce w konkursie SARP na projekt koncepcyjny Muzeum Morskiego – CENTRUM NAUKI przy ulicy inż. Tadeusza Apolinarego Wendy 6 (nabrzeże Starówka) w Szczecinie








