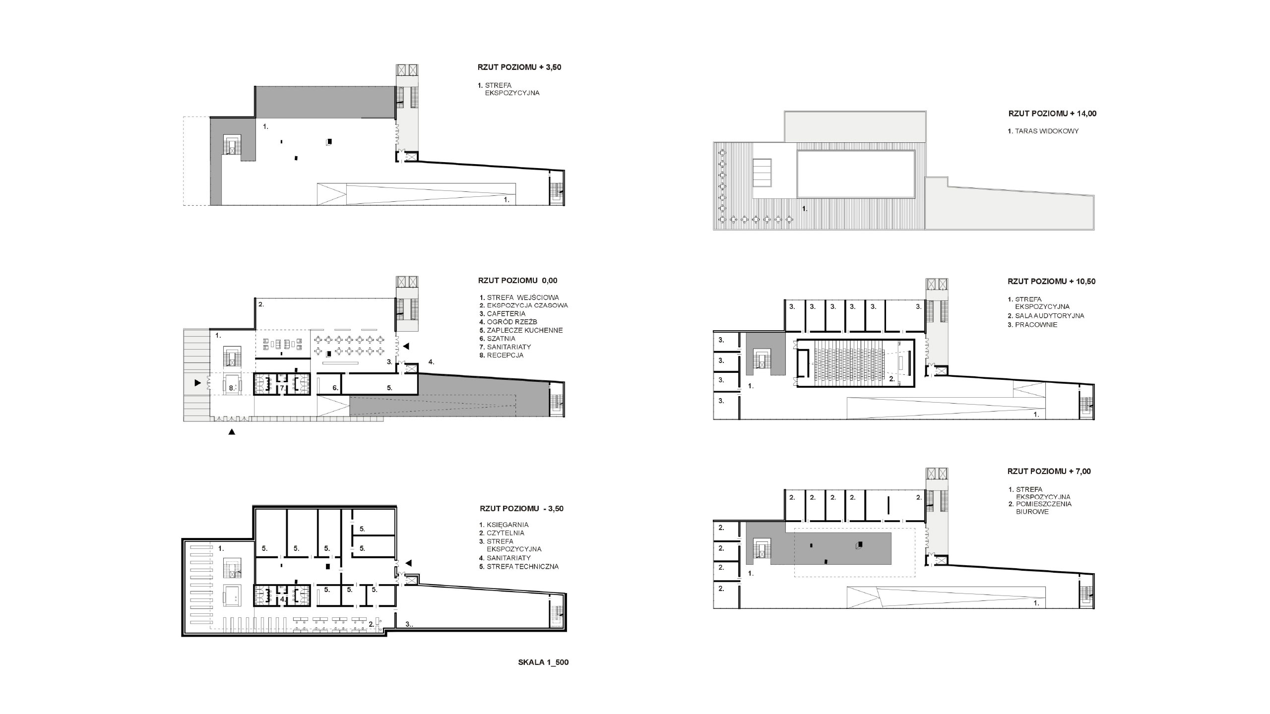
Muzeum Sztuki Współczesnej w Toruniu lokalizacja: Toruń architekci: Bartłomiej Brzózka, Przemo Łukasik, Łukasz Zagała, Dawid Beil, Kuba Pudo, Tomasz Majewski, Dominik Jaksik, Wojciech Czapnik projekt: 2004 nagroda: wyróżnienie