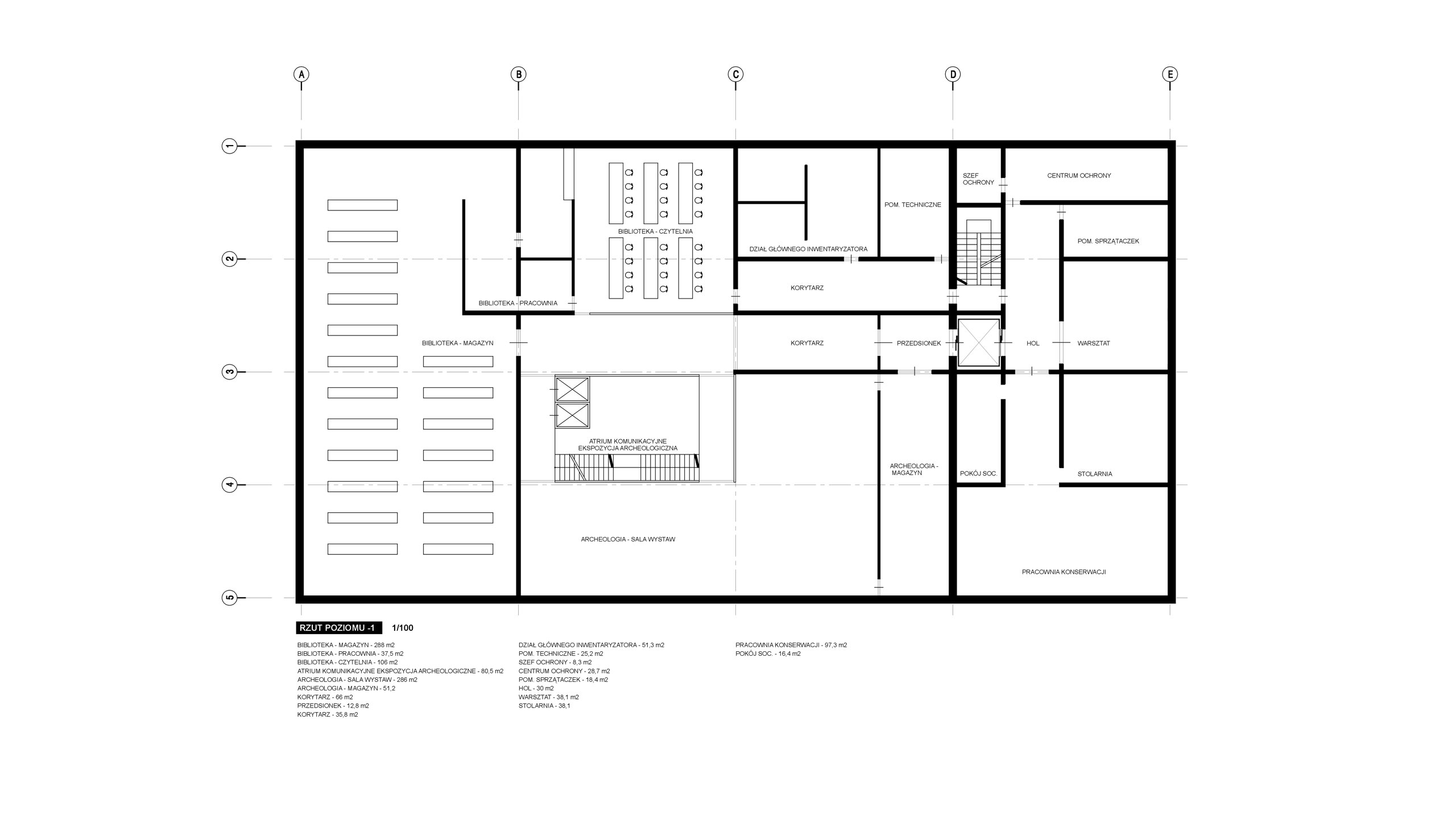
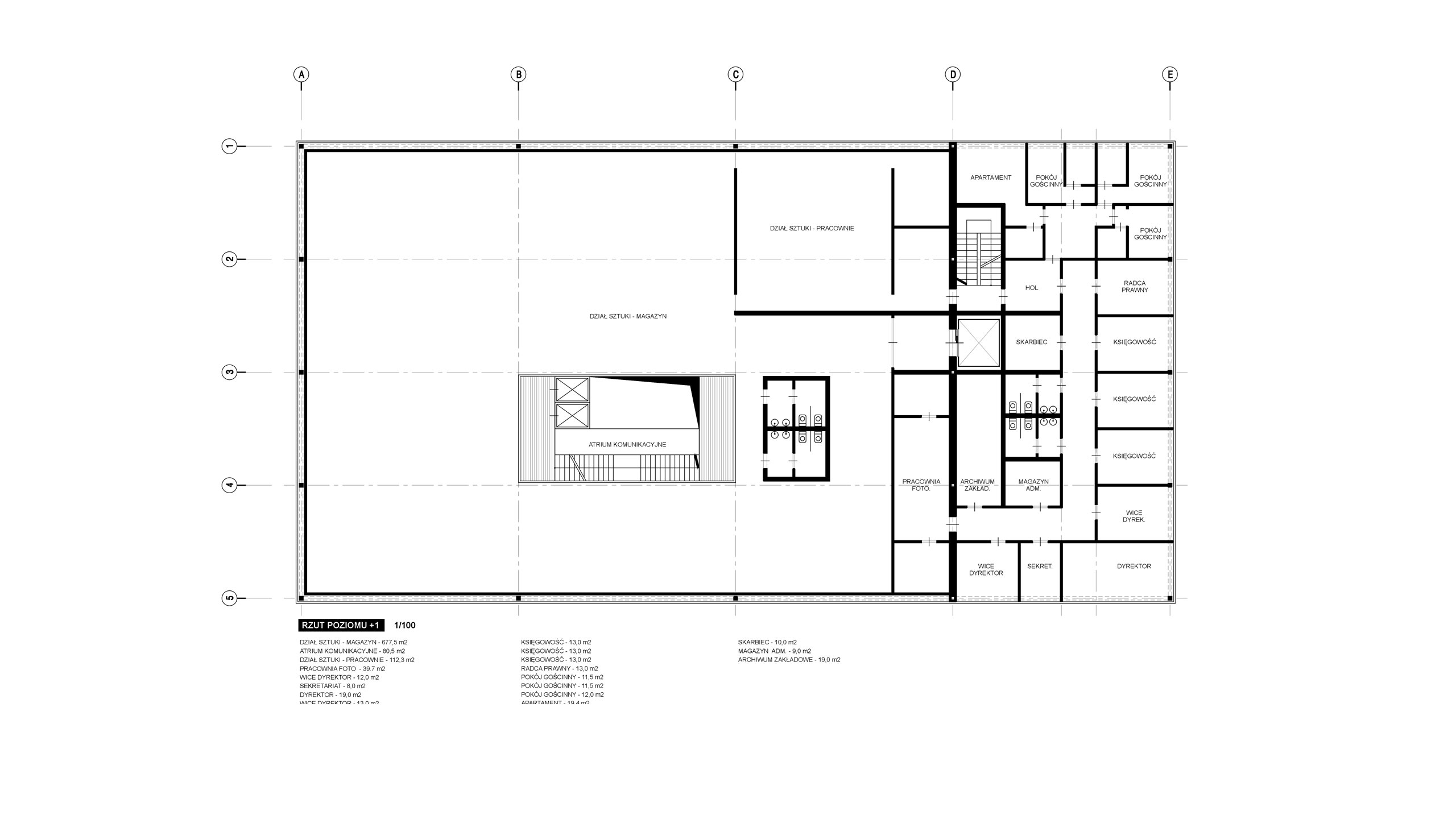
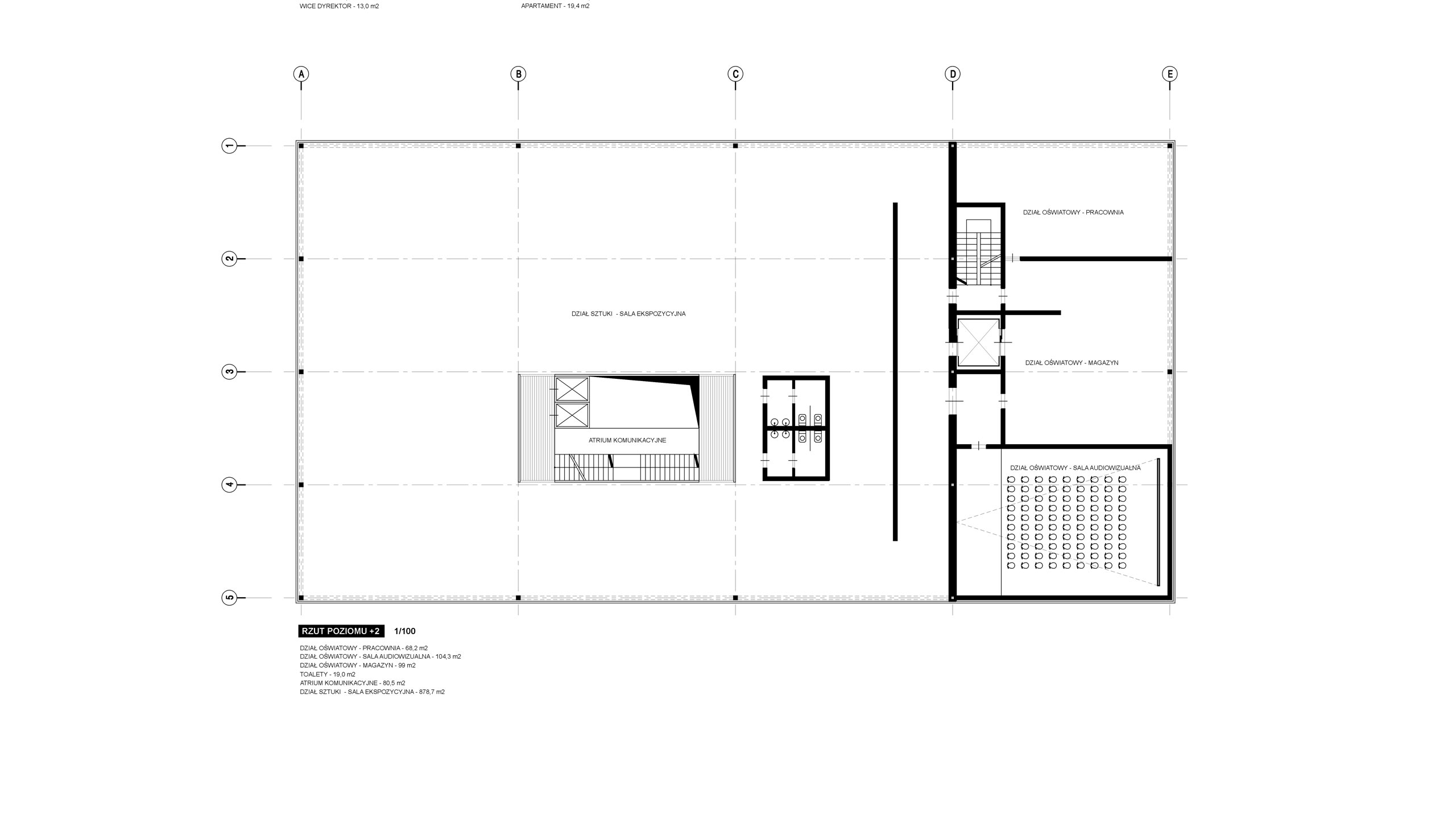
Muzeum Narodowe Ziemi Przemyskiej
Konkurs SARP nr 921 realizacyjny, otwarty, ogólnopolski, jednoetapowy na koncepcję architektoniczną siedziby Muzeum Narodowego Ziemi Przemyskiej w Przemyślu.
- lokalizacja: Przemyśl
- architekci: Bartłomiej Brzózka, Przemo Łukasik, Łukasz Zagała, Tomasz Majewski, Dawid Beil, Maria Jaksik-Fikus, Dominik Jaksik
- projekt: 2002









