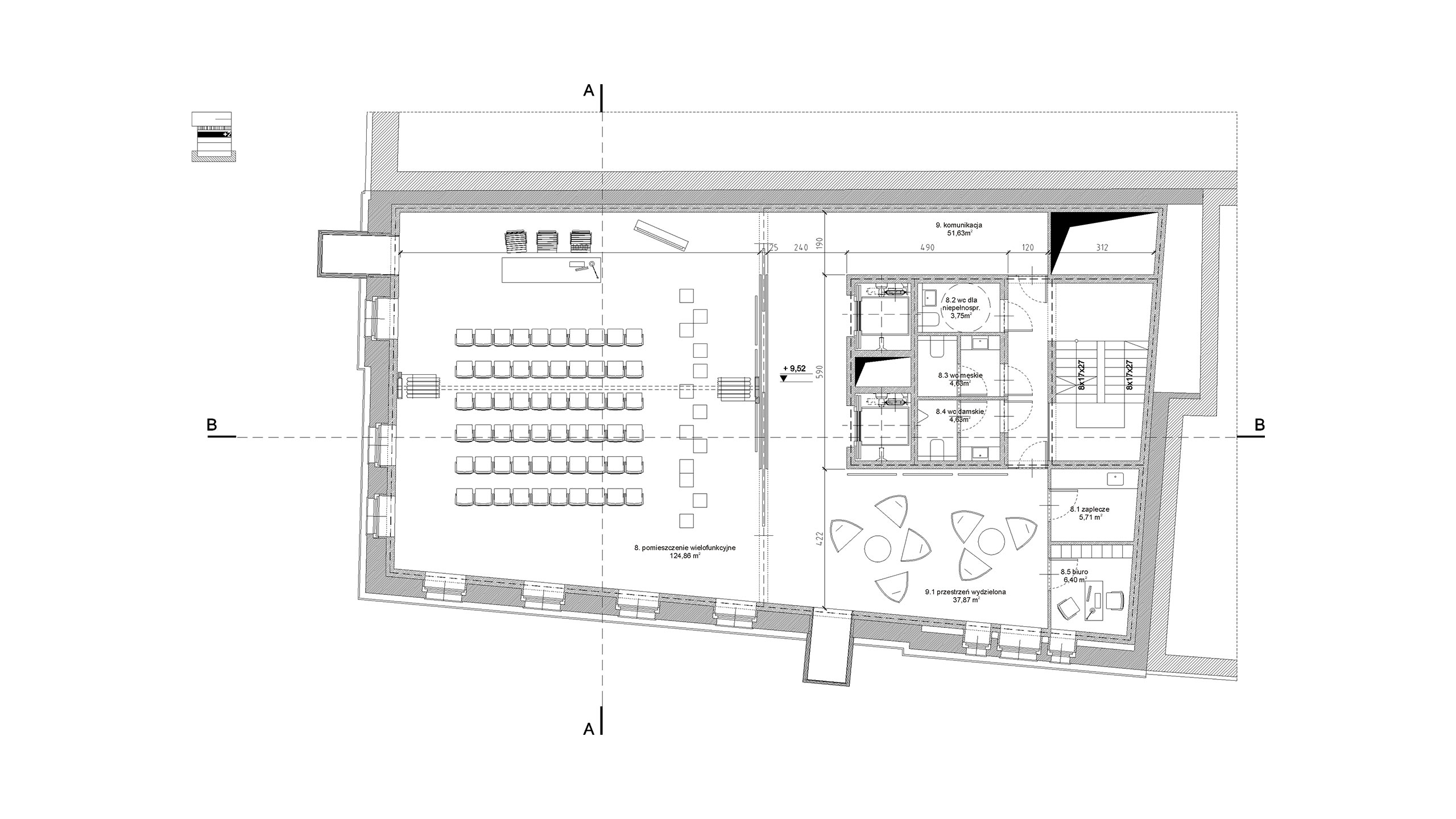
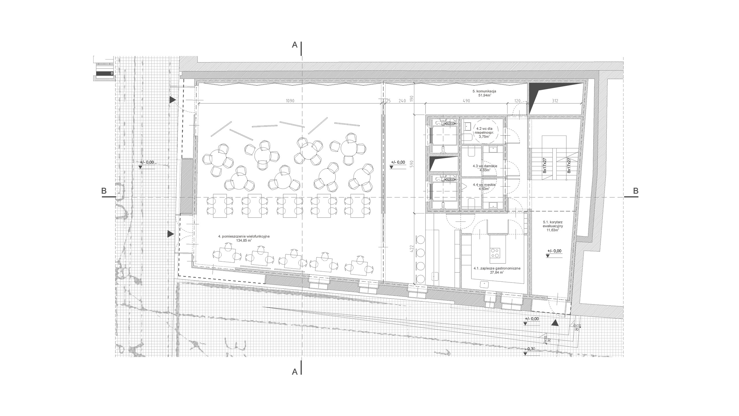
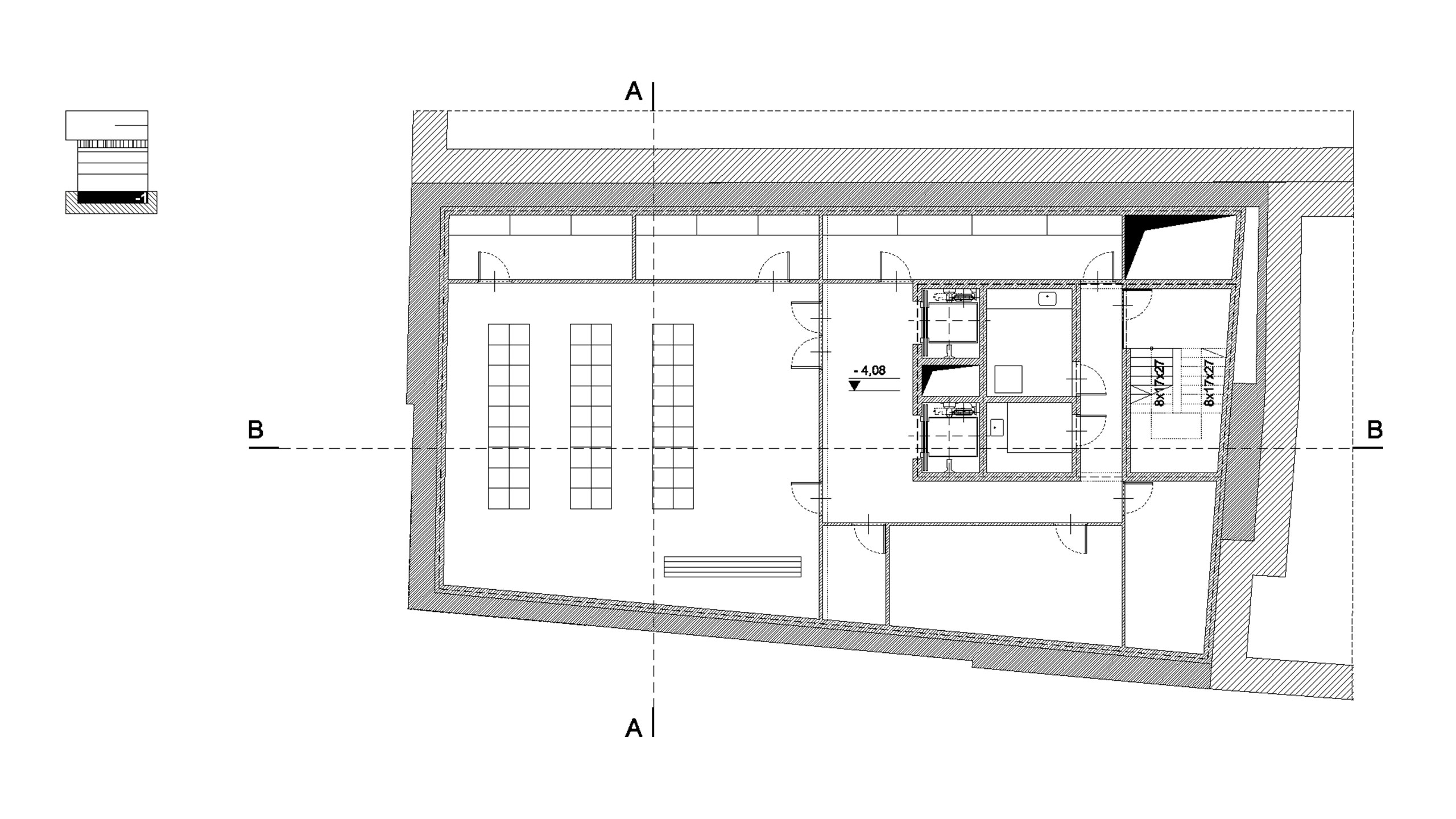
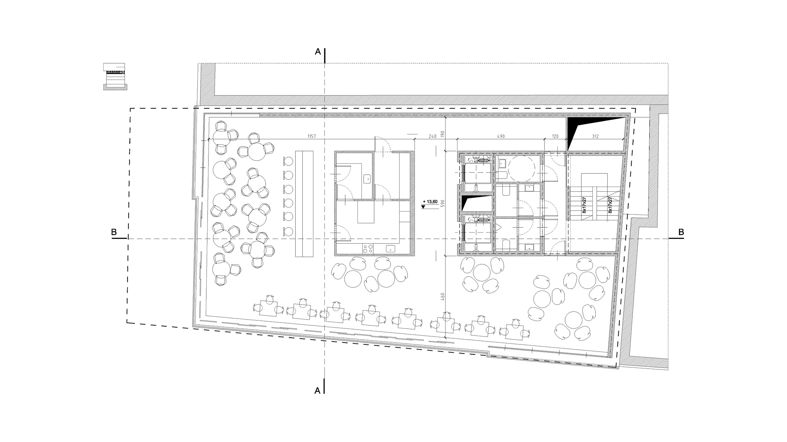
Przebudowa kamienicy w Katowicach lokalizacja: Katowice, ul. Mariacka architekci: Przemo Łukasik, Łukasz Zagała współpraca autorska: Tymon Czyżewski, Krzysztof Drozda, Rafał Dziedzic, Tomek Majewski, Justyna Siwińska-Pszoniak projekt: 2010