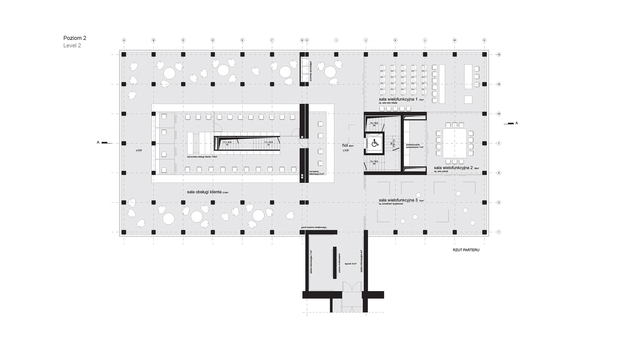
Urząd Miejski w Bytomiu
Projekt konkursowy na przebudowę budynku Urzędu Miejskiego w Bytomiu
- lokalizacja: Bytom, ul. Parkowa
- architekci: Przemo Łukasik, Łukasz Zagała
- współpraca autorska: Justyna Siwińska-Pszoniak, Daria Cieślak, Rafał Dziedzic, Michał Sokołowski, Krzysztof Drozda, Tomasz Majewski
- projekt: 2009







