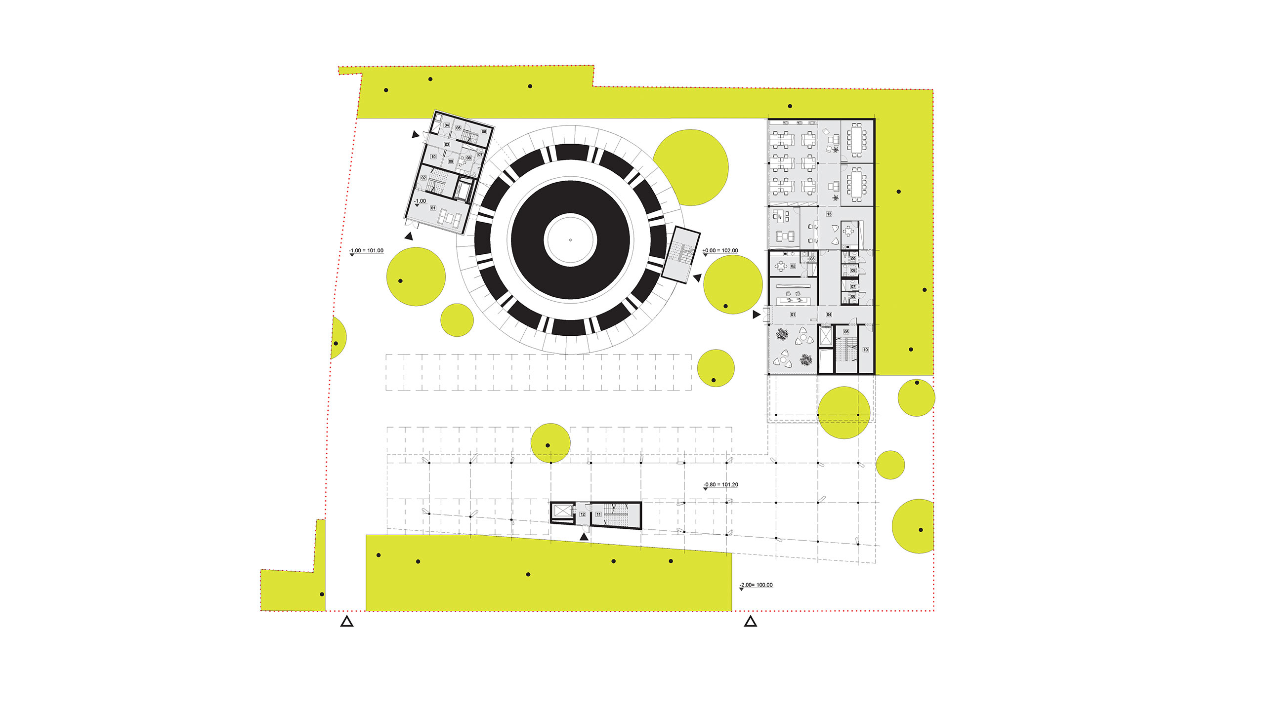
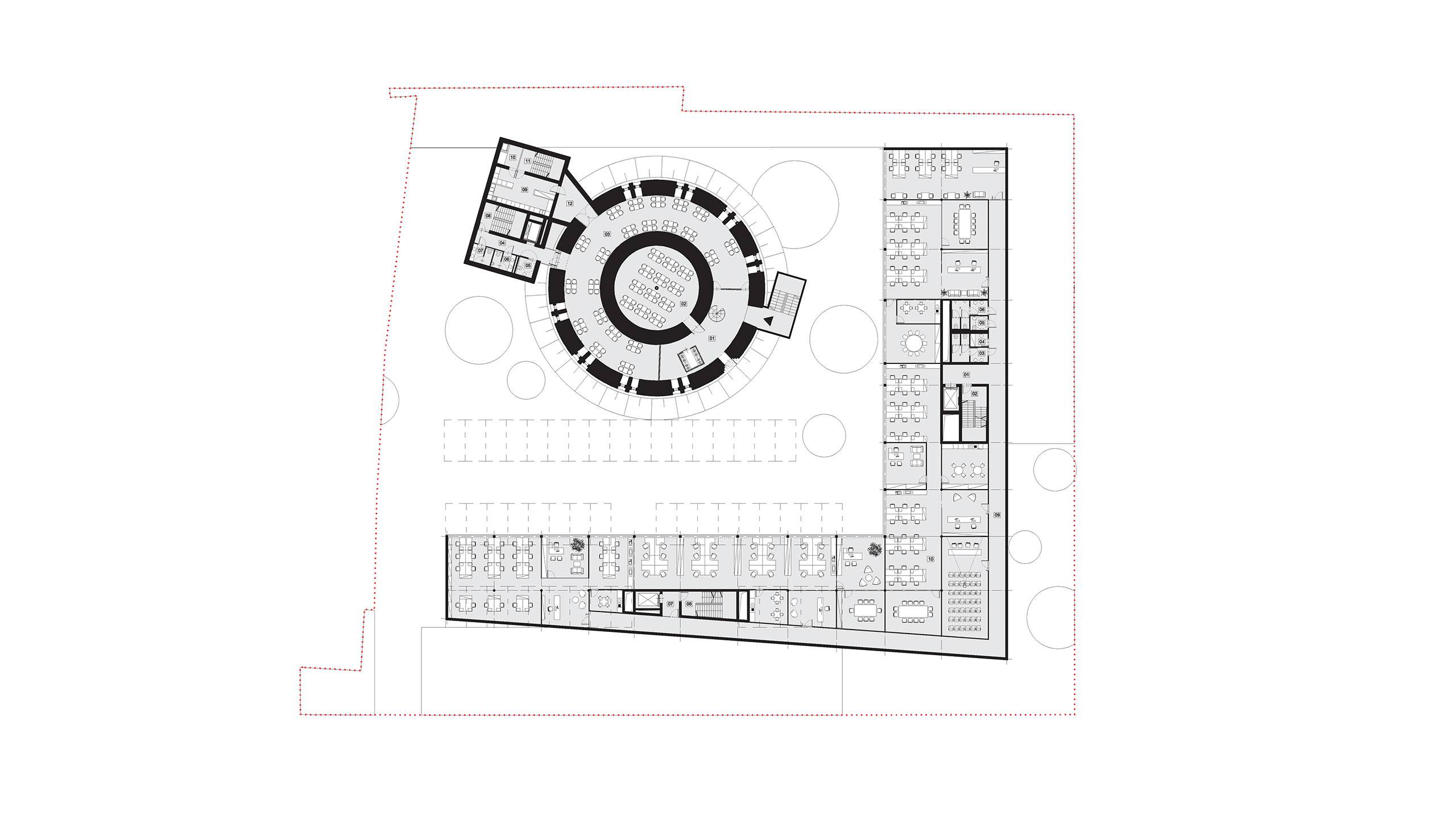
Wieża ciśnień w Gliwicach
Adaptacja dawnej wieży ciśnień na funkcje kultury i projekt budynku usługowo – biurowego
- lokalizacja: Gliwice, ul. Sobieskiego
- architekci: Przemo Łukasik, Łukasz Zagała
- współpraca autorska: Justyna Siwinska-Pszoniak, Daria Cieślak, Krzysztof Drozda, Michał Sokołowski, Kuba Pudo, Maria Jaksik-Fikus, Tomasz Majewski, Dominik Jaksik, Rafał Dziedzic
- konstrukcja: Firma Inżynierska STATYK
- inwestor: Water Tower sp z o.o.
- powierzchnia: 2800 m²
- projekt: 2009-2010






