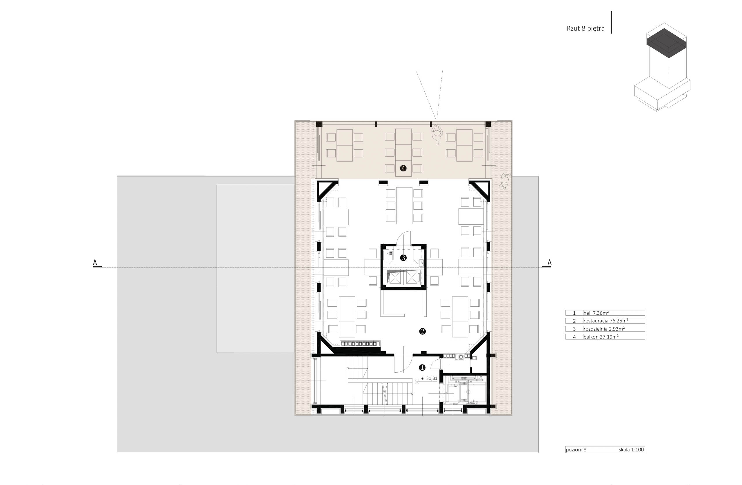
Wieża wodna w Pszczynie
Koncepcja przebudowy wieży wodnej w Pszczynie
- lokalizacja: Pszczyna
- architekci: Przemo Łukasik, Łukasz Zagała
- współpraca autorska: Mateusz Tomiczek, Konrad Basan, Michał Sokołowski
- inwestor: prywatny
- powierzchnia: 1580 m²
- projekt: 2013










